防腐系列
Corrosive Resistant
氟塑料襯里管道管件系列當前頁面:首頁 > 氟塑料襯里管道管件系列
鋼襯塑直管

概述
此工藝采用PTFE棒材車削成的薄膜,纏繞燒結成形。適用于常壓、正壓的輸送管路(如三廢處理管路等),不宜用于有負壓的管理(如泵進、出口處及由落差或突然冷卻等能產生負壓的管路)。
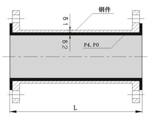
F4、PO、PE 襯里管道
項目名稱 | 聚四氟乙烯襯里管道(F4) | 聚烯烴襯里管道(PO或PE) |
介質 | 除高溫高融堿金屬、元素氟與三氟化氯外,任何種類、任何濃度的酸、堿、鹽、強氧化劑、有機溶劑與其它所有強腐蝕性化學介質。是解決高溫稀硫酸、氫氟酸、鹽酸和各種有機酸等強腐蝕化學介質腐蝕問題的理想產品。 | 一般弱酸、弱堿、廢水、廢氣等。 詳見使用條件表。 |
溫度 | -50~250℃ | -30~80℃ |
壓力 | 標準產品為1.6Mpa特殊可制成高達6.4Mpa | 標準產品為1.6Mpa特殊可制成高達6.4Mpa、抗負壓77Kpa |
直管:規格對照表
標準長度(mm) | |||||
1000 | 1500 | 2000 | 2500 | 3000 | 4000 |
公稱直徑 DN | 壁厚(mm) | |||
F4 | PO(PE) | |||
δ1 | δ2 | δ1 | δ2 | |
25 | 2-3 | 1.1-1.5 | 2-3 | 2.5-3.5 |
32 | 2-3 | 1.1-1.5 | 2-3 | 2.5-3.5 |
40 | 2-3 | 1.1-2.0 | 2-3 | 2.5-3.5 |
50 | 3-4 | 1.1-2.5 | 3-4 | 3.0-3.5 |
65 | 3-4 | 1.1-2.5 | 3-4 | 3.5-4.5 |
80 | 3-4 | 1.1-2.5 | 3-4 | 4.0-4.5 |
100 | 3-4 | 1.1-3.0 | 3-4 | 4.0-4.5 |
125 | 4-5 | 1.5-3.0 | 4-5 | 4.0-5.0 |
150 | 4-5 | 1.5-3.0 | 4-5 | 4.5-5.5 |
200 | 4-5 | 1.5-3.0 | 4-5 | 5.0-7.0 |
250 | 4-5 | 2.0-3.5 | 4-5 | 6.0-8.0 |
300 | 5-6 | 3.5-4.0 | 5-6 | 7.0-10 |
F4、PO內襯兩端翻邊寬度
< 返回 >